In Fall of 2023, we designed a new coffeeshop in downtown Baton Rouge. This was an adaptive reuse project that was located in the heart of the central business district and located in an old letterpress building. The concept of my design is to create a third place for the users where you can leave the stress of the outside world behind. The colors blend together with the original materials of the building to create a stress free environment and connection to the Louisiana history
Mood Board (Made with Adobe Photoshop)
Mood Board (Made with Adobe Photoshop)
Material Board (Made with Adobe Photoshop)
Material Board (Made with Adobe Photoshop)
Bubble to Blocking Diagrams Option 1 (Made by hand and with Adobe Photoshop)
Bubble to Blocking Diagrams Option 1 (Made by hand and with Adobe Photoshop)
Bubble to Blocking Diagrams Option 2 (Made by hand and with Adobe Photoshop)
Bubble to Blocking Diagrams Option 2 (Made by hand and with Adobe Photoshop)
First Level Elevation (Made with AutoCAD)
First Level Elevation (Made with AutoCAD)
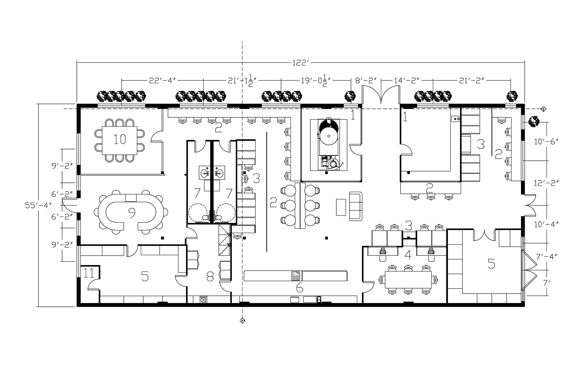
First Level Furniture Plan  (Made with AutoCAD)
First Level Furniture Plan (Made with AutoCAD)
Comfort Seating Perspective (Made with Rhino)
Comfort Seating Perspective (Made with Rhino)
Comfort Seating Rendering (Made with Adobe Photoshop)
Comfort Seating Rendering (Made with Adobe Photoshop)
Group Seating Perspective (Made with Rhino)
Group Seating Perspective (Made with Rhino)
Group Seating Rendering (Made with Adobe Photoshop)
Group Seating Rendering (Made with Adobe Photoshop)
Individual Seating Perspective (Made with Rhino)
Individual Seating Perspective (Made with Rhino)
Individual Seating Rendering (Made with Adobe Photoshop)
Individual Seating Rendering (Made with Adobe Photoshop)

You may also like

Back to Top