This project was in Fall 2025 and the groups consisted of architects and interior designers. We were tasked to create a new dormitory for the water campus students.                      
 Interior Designers: Rebecca Simon and Sommer Nguyen; Architect: Gabriella Duvall
The Link is an Academic Residences on the LSU Water Campus and is rooted in layered connection, linking together people, place, and history. Located at the edge of downtown Baton Rouge on the historic Mississippi River dock, the project becomes a bridge between academic, urban, and natural life.  
The dorm fosters student-to-student connection through shared spaces and human scale elements that encourage interaction, collaboration, and community. It also extends outward by integrating into surrounding urban infrastructure, creating opportunities for connection between students and the larger Baton Rouge community.  
The site’s adjacency to the Mississippi River anchors the design, shaping views, harnessing natural light, and capturing breezes to create comfortable indoor and outdoor gathering spaces that celebrate the river as both ecological resource and cultural landmark. Materiality and form balance old and new, acknowledging the industrial legacy of the riverfront while introducing a contemporary identity that aligns with the Water Campus’s innovation. Ultimately, the dorm’s layered connections, both physical and social, produce a design complexity that is rich in culture and locality, linking past to future, campus to site, and individuals to one another. 

Board made by Sommer Nguyen and physical model made by Gabriella Duvall 

Process Work (Made by Hand by Gabriella Duvall)
Process Work (Made by Hand by Gabriella Duvall)
Process Work Converted to Digital (Made with Adobe Illustrator by Sommer Nguyen)
Process Work Converted to Digital (Made with Adobe Illustrator by Sommer Nguyen)

Final Model (Shading and New Building Made with Revit by Sommer Nguyen, Base File Made with Rhino by Gabriella Duvall)

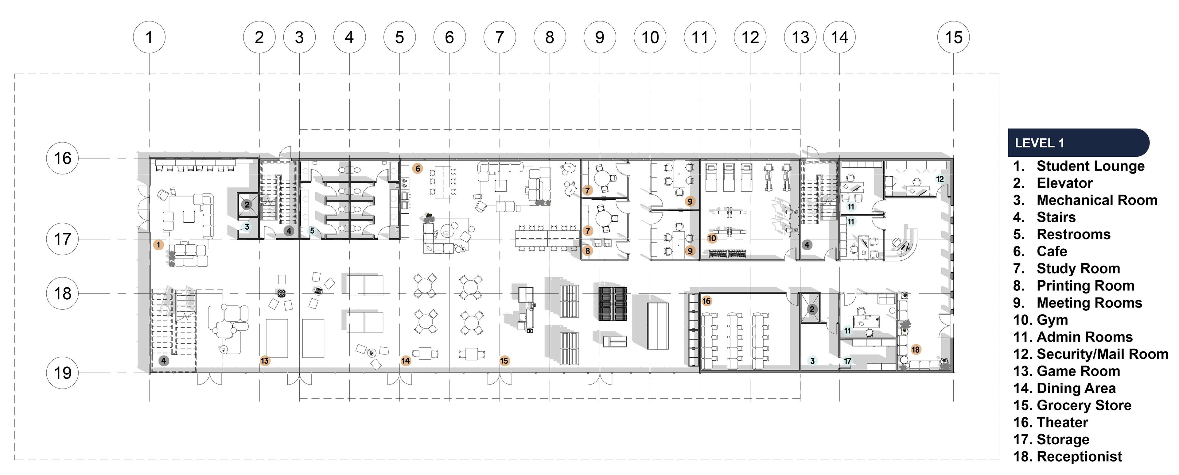
Level 1 Furniture Plan, Space Planning by Entire Group, Furniture Plan by Rebecca Simon, Exterior of Building and Labels by Sommer Nguyen (Made with Revit and Adobe Photoshop)

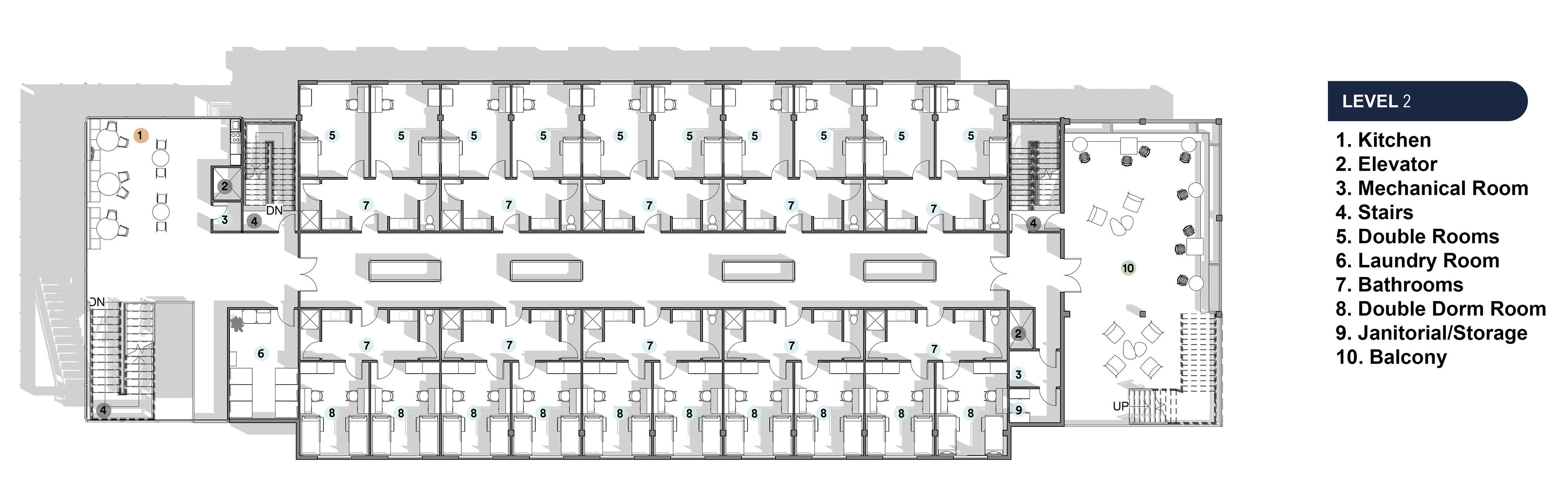
Level 2 Furniture Plan, Communal Space Furniture Plans by Rebecca Simon, Student Bedrooms by Rebecca Simona and Sommer Nguyen, Exterior of Building and Labels by Sommer Nguyen (Made with Revit and Adobe Photoshop)

Level 3 Furniture Plan, Communal Space Furniture Plans by Rebecca Simon, Student Bedrooms by Rebecca Simona and Sommer Nguyen, Exterior of Building and Labels by Sommer Nguyen (Made with Revit and Adobe Photoshop)

Double Dorm Room (Made with Revit and Enscape by Sommer Nguyen)
Double Dorm Room (Made with Revit and Enscape by Sommer Nguyen)
Grocery Store (Made with Revit, Enscape, and Adobe Photoshop by Sommer Nguyen)
Grocery Store (Made with Revit, Enscape, and Adobe Photoshop by Sommer Nguyen)
Outdoor Lounge Area (Made with Revit and Enscape, Rendering made by Rebecca Simon, Shading Detail by Sommer Nguyen)
Outdoor Lounge Area (Made with Revit and Enscape, Rendering made by Rebecca Simon, Shading Detail by Sommer Nguyen)

You may also like

Back to Top