In Spring of 2024, we redesigned a local downtown fire station into an elementary school. Elementary schools are the foundation for children's learning, a time where learning should be fun and engaging instead they are faced with problems such as limited and inadequate building structures. there can be a change in the creation of schools by maximizing daylight, central learning zones, and workstations.

Mood Board (Made with Adobe Photoshop)

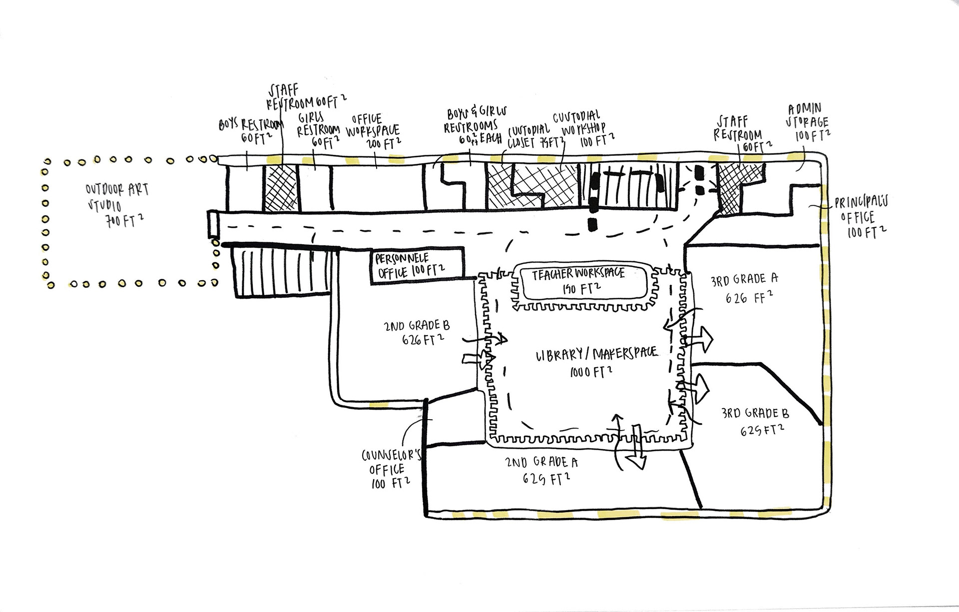
First Level Blocking Diagram (Made with Hand)

Second Level Blocking Diagram (Made with Hand)

Furniture Plans and Elevation (Made with Revit)

Desert Floor Library Flex Space Rendering (Made with Revit and Enscape)
Desert Floor Library Flex Space Rendering (Made with Revit and Enscape)
Ocean Floor Cafeteria Flex Space Rendering (Made with Revit and Enscape)
Ocean Floor Cafeteria Flex Space Rendering (Made with Revit and Enscape)
Ocean Floor Cafeteria Flex Space Rendering (Made with Revit and Enscape)
Ocean Floor Cafeteria Flex Space Rendering (Made with Revit and Enscape)
Ocean Floor First Grade Classroom Rendering (Made with Revit and Enscape)
Ocean Floor First Grade Classroom Rendering (Made with Revit and Enscape)
Ocean Floor Kindergarten Classroom Rendering (Made with Revit and Enscape)
Ocean Floor Kindergarten Classroom Rendering (Made with Revit and Enscape)
Desert Floor Third Floor Classroom Rendering (Made with Revit and Enscape)
Desert Floor Third Floor Classroom Rendering (Made with Revit and Enscape)

You may also like

Back to Top